MENU

株式会社更紗

実績

事業実績のご紹介



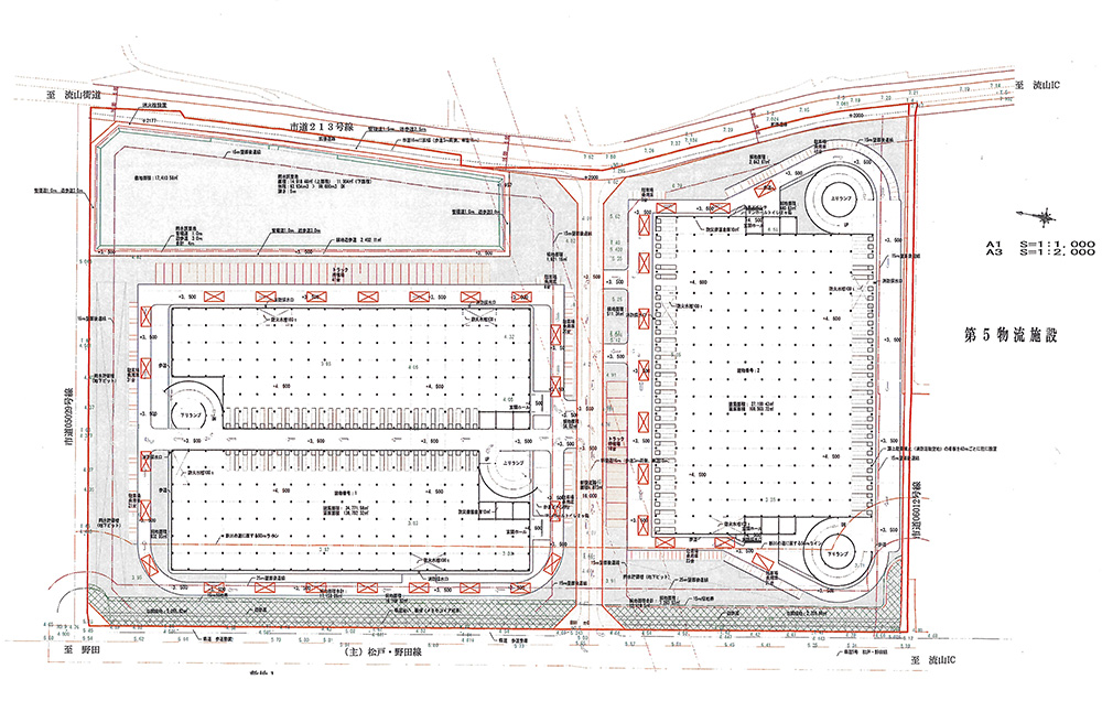
第5物流施設 計画

市道213号線沿いにおける第5物流施設計画

第5物流施設 流山市



野田市瀬戸物流センター計画

物流効率化法による、千葉県内三例目の大規模物流開発事業を手がける。
(野田市瀬戸物流センター用地の買取り売買 )





物流倉庫

常磐道流山インター周辺 第5物流開発事業の取りまとめ仲介。





株式会社更紗 | 千葉、流山、東京・関東で土地、不動産 株式会社更紗

〒270-0137 千葉県流山市市野谷26-4
(運A72街区14)
TEL. 04-7159-7211
FAX. 04-7159-7368



> 個人情報保護方針

2018 (C) SARASA ESTATE.CO.LTD ALL right reserved. Googleアナリティクスで解析を行っています。